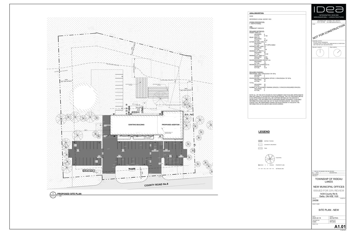
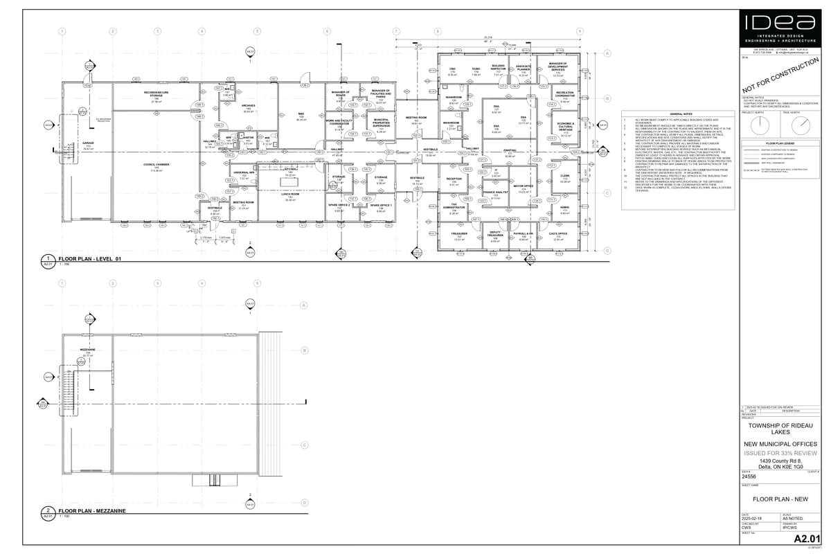
The Township has engaged architectural firm, IDEA to consult and design a new addition and renovate the existing Chantry Municipal Offices at 1439 County Road 8, Delta, ON. IDEA was given approval by Council to proceed to 33% working drawings and to proceed to 66% by Council.





